Ельничный
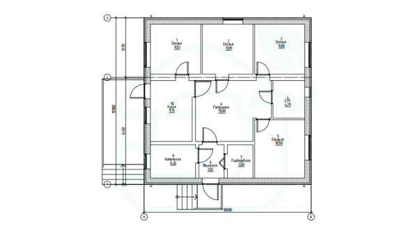
Планировки
Фасады
Высота – 2.9м
Размер дома – 10,000х 10,000
Планировка:
- Спальня 1 – 9,03
- Спальня 2 – 9.09
- Спальня 3 – 9,00
- Санузел 4,29
- Спальня 4 – 10,50
- Гостиная 15,08
- Гардеробная 3,06
- Прихожая 3.02
- Котельная 5,40
- Кухня 9,15
Максимальная комплектация «Под чистовую» – это готовый дом со всеми инженерными сетями, теплым полом в стяжке, приточно-вытяжной вентиляцией, отштукатуренными стенами и электрическим котлом в котельной. Подготовленный дом к чистовому ремонту.
- Фундамент, стенокомплект, кровля, отопление, электрика, окна, отделка внутренних стен, стяжка пола, отделка фасада, канализация, скважина, монтажные работы.
Минимальная комплектация «Домокомплект» – базовая комплектация дома, которая состоит из фундамента, несущих стен и перегородок, междуэтажных перекрытий, стропильной системы и крыши. Это дом без отделки, окон, дверей и инженерных коммуникаций, отделки и облицовки фасада.
- Фундамент, стенокомплект, кровля, монтажные работы.
Отдельно можно заказать комплектацию «Стенокомплект» – это комплект несущих стен и перегородок, междуэтажных перекрытий. Установим стенокомплект всего за 3 дня!
В стоимость не входит доставка и техника
Проект дома является типовым, вы можете внести свои корректировки, исправить и переделать под свои предпочтения. Стоимость комплекта при других параметрах можно узнать у нашего менеджера по телефону.
Устройство фундамента "Сваи + ростверк + плита"
(Тип фундамента выбирается на основании инженерно-геологических изысканий)
- Снятие почвенно-растительного слоя с перемещением по участку.
- Сваи диаметр сваи Ø300 мм, глубина сваи 2,6 м или до стабильного грунта (скала).
- Армокаркас из арматуры - Ø10 мм, поперечная арматура - Ø8 мм.
- Бетон БСТ М300 В22,5 шаг сваи 1,6 - 2 м. Согласно проекту.
- Гидроизоляция технической пленкой 150 МКР.
- Армирование плиты арматура АIII Ø 12/10 мм.
- Заливка монолитной плиты бетоном hплиты = 150 мм.
- Прокладка канализационных труб в теле обратной засыпки фундамента.
- Диаметр 110 мм. Трубы утеплены вспененным полиэтиленом.
Возведение комплекта стен, плит
- Несущие стены - 380 мм.
- Перегородочные стены - 100 мм.
- Перемычки, армопояс.
- Плиты 380 мм.
Устройство кровли "Холодная двухскатная"
- Мауэрлат по периметру несущих стен здания из бруса.
- Стропильная систему с шагом 600 мм.
- Вылет стропильной ноги 500 мм от фасадной части дома, гидро-ветрозащита.
- Контробрешетка из бруска для создания вентиляционного зазора. Металлочерепица 0,5 мм.
Монтаж системы отопление "Теплый пол"
- Устройство теплоизоляционного слоя из экструдированного пенополистирола толщиной 50 мм.
- Труба теплого пола сшитого полиэтилена 16 мм, коллектор теплого пола, электрокотёл.
- Частотный преобразователь для скважинного насоса, электроводонагревателя на 80 литров.
- Насос скважинный российского производства, фильтр грубой очистки.
Монтаж электрики
(Электроточка — это установочное место под розетку, вывод освещения или выключатель)
Электроразводка по помещениям:
- Тех. помещение, кухня - не более 8-и электроточек.
- Гостиная, спальни, сан. узлы - не более 4-х точек на помещение.
- Подсобные помещения, гараж, кладовые, коридор, тамбур - не более 3-х точек на помещение.
- Над входной дверью - 1-на электроточка, для подключения тепловой завесы.
Монтаж окон, входных дверей
- Пластиковые окна 70 мм 5-ти камерный профиль, 2-х камерный стеклопакет.
- Каждый оконные проем имеет одну поворотно откидную створку.
- Отливы оконных проемов.
- Дверь - металлическая с терморазрывом российского производства.
Монтаж внутренней отделки стен
Оштукатуривание стен гипсовой штукатуркой в жилых, сухих помещениях, оштукатуривание стен цемент-песчаной штукатуркой в котельной и влажных помещениях.
Монтаж стяжки пола
Стяжка механизированным способом толщиной 50-70 мм.
Монтаж отделки фасада
Оштукатуривание с армирующей фасадной сеткой, декоративный слой фактура «Короед».
Монтаж септика "Евролос био"
Установка септика не дальше 5 м от дома. Предназначен для семьи до 4-х человек.
(Если геология участка не позволяет выполнить монтаж стекло пластикового септика, высокий УГВ, то оборудование согласовывается индивидуально)
Устройство Скважины - до 30 м
- Колодец под скважину Ø900 мм и на глубину до 2 м.
- Насос, ввод в дом из трубы ПНД 32 мм, внутри трубы греющий кабель.
- Внутренняя разводка водопровода из металлопластиковой трубы 20 мм, разводку до оборудования 16 мм.
- В состав мокрых точек ХВС/ГВС входит кухня - раковина; сан. узел - раковина (1шт), ванна/душевая (1шт), унитаз (1шт); котельная - стир. машинка (1шт).
Не нашли подходящий проект?
Не беда! Давайте создадим уникальный проект, который будет разработан специально под ваши требования!
Заказать индивидуальный проект
Готовый комплект материалов

Не требует дополнительных утеплений








